Espace détente dans un bureau en open space à Lyon
Accueil > Professionnels > aménagement d'un plateau de bureaux en open space à Lyon

aménagement d'un plateau de bureaux en open space à Lyon

Espace détente dans un bureau en open space à Lyon Photo Avant projet d'aménagement à Lyon Bureau aménagé et isolés des autres Espace restauration ouvert pour open space à Lyon
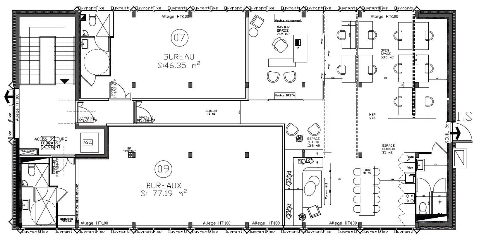
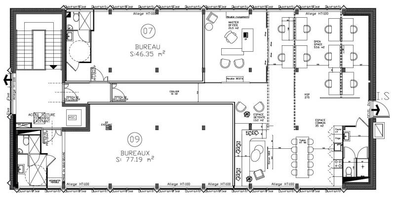
L’agence Stéphane Millet Architecte d’intérieur haut de gamme, reconnu par l’émission « M comme Maison » de France TV, signe ce beau projet d’aménagement d’un plateau de bureaux en open space à Lyon, Région Auvergne-Rhône-Alpes.

Clients : Professionnels, commerces, entreprises tous secteurs et professions libérales
Type de bien : Plateau vide
Projet : Aménagement d’un plateau de bureaux en open space
Architecte d’intérieur : Agence Stéphane Millet - France TV - M comme Maison - Lyon, Paris, Bordeaux - France
Lieu : Lyon - 69 - Rhône - Région Auvergne-Rhône-Alpes

QUEL CHALLENGE POUR L'ÉQUIPE ?

LA RÉPONSE EN 3 POINTS CLÉS DE L'AGENCE STÉPHANE MILLET,
ARCHITECTE D'INTERIEUR HAUT DE GAMME POUR PROFESSIONNELS :

- Concevoir et agencer des bureaux en Open Space à partir d’un plateau complètement vide tout en respectant le budget.

 - Harmoniser l’espace avec des couleurs douces et pastel et optimiser la convivialité pour les futurs employés.

- Choisir du mobilier confortable qui invite à la détente. Tout est fait pour accentuer le bien-être et donner un caractère reposant aux différentes zones.

Chaque projet de conception est unique. Nous imaginons des intérieurs à votre image répondant de manière personnalisée et originale à vos attentes, envies et besoins. En tant que professionnels, si vous souhaitez également un architecte d'intérieur haut de gamme pour l’agencement d’un plateau vide en bureaux en open space, n'hésitez pas à contacter l’Agence Stéphane Millet - France TV - M comme Maison - Lyon, Paris, Bordeaux - France

Stéphane Millet et son équipe d'architectes d'intérieur ont réalisé l'aménagement d'un plateau de bureaux en open space dans la région Lyonnaise. Notre équipe d'architectes d'intérieur à Lyon a commencé son travail de conception en agencement à partir d'un plateau complètement vide. Tout était possible, avec pour seules contraintes des bureaux en Open Space à imaginer et un budget à respecter. Notre équipe d'architectes d'intérieur s'est donné pour mission et défi d'harmoniser l'espace et d'optimiser la convivialité pour les futurs employés. Ce projet a été traité avec des couleurs douces et pastel. Le mobilier est confortable et invite à la détente. Tout est fait pour accentuer le bien-être et donner un caractère reposant aux différentes zones. Si vous aussi vous souhaitez aménager ou restructurer un plateau de bureaux professionnels en Open Space à Lyon, notre équipe est à votre écoute. Vous pouvez nous contacter ici et nous reviendrons vers vous le plus rapidement possible.

Découvrez également
Détail de luminaires pour cabinet d'orthodontie Nantes

Aménagement d’un cabinet d’orthodontie à Nantes

L'équipe d'architectes d'intérieur de Stéphane MILLET a conçu un cabinet d'orthodontie sur 4 niveaux, dans un bât...
En savoir +
Aménagement de salle de réunion pour bureaux à Lyon

Aménagement intérieur de bureaux haut de gamme neuf à Lyon

Stéphane Millet et son équipe ont conçu l'agencement intérieur des bureaux en écho au travail de l'architecte, en inté...
En savoir +
Aménagement intérieur Salon de massage Lyon 6

rénovation et agencement intérieur d'un salon de massage à Lyon

Stéphane Millet et son équipe ont réalisé une rénovation complète de l'aménagement intérieur d'un salon de massage à L...
En savoir +