Visuel 3D de l'aménagement d'un séjour à Bordeaux
Accueil > Ideal-conceptions > Aménagement et optimisation d'une pièce de vie à Bordeaux

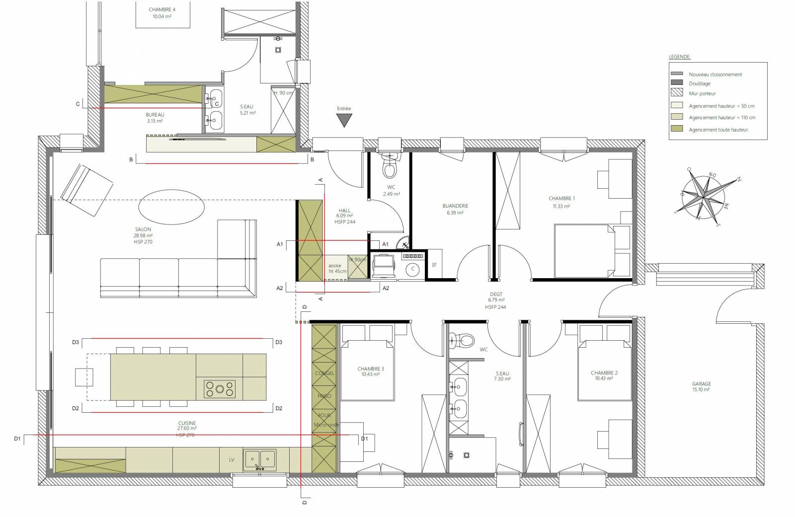
Aménagement et optimisation d'une pièce de vie à Bordeaux

Visuel 3D de l'aménagement d'un séjour à Bordeaux Aménagement d'un séjour sur plan dans l'ouest Agencement d'une entrée à Bordeaux Visuel 3D réalisé par l'agence d'architecture d'intérieur Stéphane MILLET
Dans cette formule IDÉAL, Stéphane MILLET et ses architectes d'intérieur en ligne ont redéfini trois espaces. 

La pièce de vie :

Nos architectes d'intérieur ont travaillé sur l'optimisation de l'espace cuisine, salle à manger et séjour. Intégrer toutes ces fonctions dans une pièce de moins de 60 mètres carrés était un véritable challenge, surtout pour une famille nombreuse ! 

L'entrée : 

Nos architectes d'intérieur ont également conçu une entrée afin d'intégrer de nombreux rangements et de séparer les toilettes de la zone de vie. 

L'accès à la chambre parentale : 

Pour accentuer la séparation entre le séjour et la chambre parentale, Stéphane MILLET et ses architectes d'intérieur en ligne ont prolongé le mur par un claustra et fait disparaître la porte de la chambre dans un grand placard sur mesure. 


Si vous aussi vous souhaitez rénover ou aménager une zone de votre logement, notre formule IDÉAL est faite pour vous.
Découvrez également
Visuel 3D de l'aménagement d'une entrée à Paris

Aménagement d'un espace cuisine, salle à manger, salon et d'une entrée à Antony (92)

Voici ici la réalisation de plans d'architecte d'intérieur pour aménager un appartement à Antony près de ParisComment ...
En savoir +