Aménagement d'une pièce de vie à Lyon
Accueil > Ideal-conceptions > Rénovation d'un séjour au sud de Lyon (69)

Rénovation d'un séjour au sud de Lyon (69)

Aménagement d'une pièce de vie à Lyon Plan 2D de l'aménagement d'une pièce de vie à Lyon Visuels 3D de l'aménagement d'une mezzanine bureau à Lyon Aménagement d'un séjour à Lyon

Notre formule IDÉAL imaginée par Stéphane Millet a, cette fois encore, apporté une réponse adaptée et créative à nos clients qui souhaitaient réaménager la zone "jour" autour de leur salon. Voici en détail, ci-dessous, le projet conçu par nos architectes d'intérieur en ligne : 

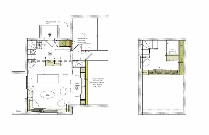
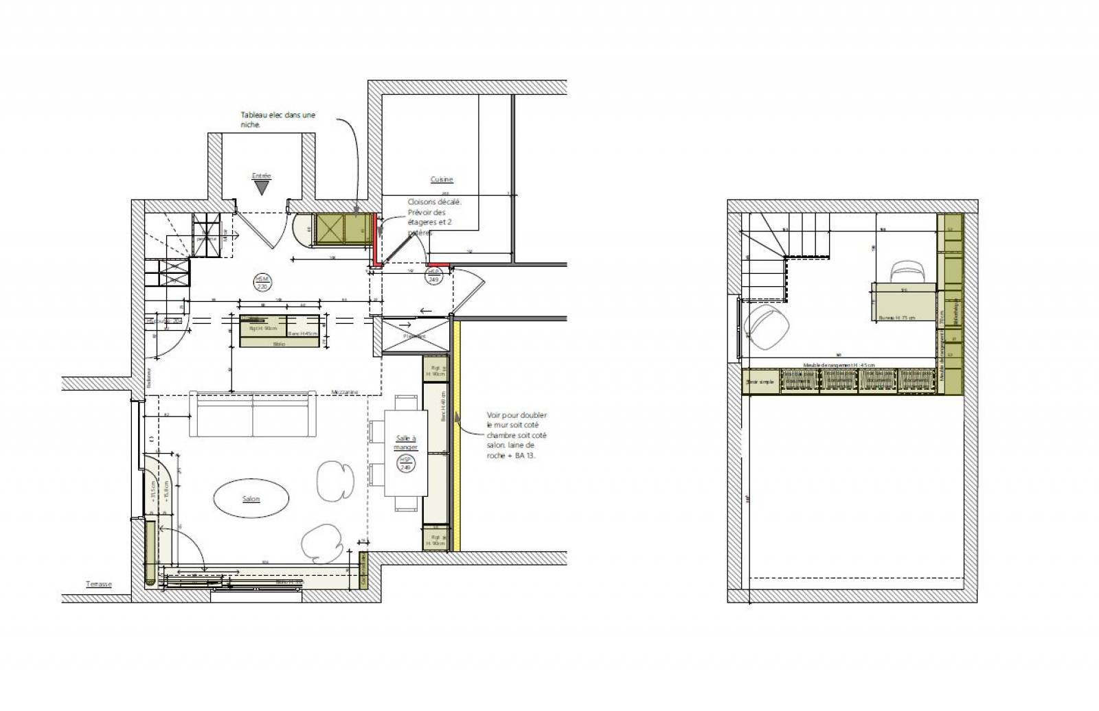
1. Séparer l'entrée de la zone de vie :


L'entrée est la première zone de l'appartement que notre agence d'architectes d'intérieur en ligne a réaménagée. Il s'agissait de redéfinir clairement ses limites, recréer un sas d'entrée visible, tout en intégrant de nombreux nouveaux rangements. La solution trouvée par nos architectes d'intérieur est la création d'un petit meuble/bibliothèque surmonté d'un claustra métallique qui redonne à l'accès du logement sa véritable identité. 
Afin d'optimiser la surface de rangement, les escaliers autrefois en colimaçon sont supprimés et remplacés par une montée d'escalier bicolore, sous laquelle sont intégrés des placards. 

2. A gauche du séjour, une nouvelle salle à manger plus design :


Nos architectes d'intérieur en ligne et Stéphane Millet ont imaginé une salle à manger identifiable par un traitement coloré différent de celui du salon. Avec une hauteur sous plafond plus basse et un papier peint végétal, nous avons imaginé une zone cozy et reposante.
Le salon, très lumineux et tourné vers la terrasse, est propice à la lecture et la contemplation. Lors du recueil des besoins de nos clients, nos équipes de concepteurs ont noté leur souhait de faire disparaître la télévision, peu utilisée. Adeptes des solutions d'aménagement créatives et originales, nous avons imaginé une télévision modulable, sur rails et dissimulée dans un caisson lorsqu'elle est éteinte.


3. La mezzanine aménagée en espace bureau au-dessus du salon :

La mezzanine est la dernière zone aménagée dans cette formule IDÉAL. Stéphane Millet et son équipe d'architectes en ligne ont de nouveau noté un besoin important en espaces de stockage. Ces clients ont besoin de ranger de nombreux livres et leurs papiers divers. 
Cette zone de l'appartement reprend les codes couleurs du rez-de-chaussée et le blanc apporte la luminosité nécessaire à l'utilisation de l'espace de travail.


Vous aussi vous souhaitez faire appel à Stéphane Millet et à son équipe d'architectes d'intérieur en ligne pour aménager une zone de votre appartement ? La formule IDÉAL est faite pour vous ! Contactez-nous, nous reviendrons rapidement vers vous.