Agencement d'une pièce de vie à Eze
Accueil > Ideal-conceptions > Restructuration d'un séjour à Eze (06)

Restructuration d'un séjour à Eze (06)

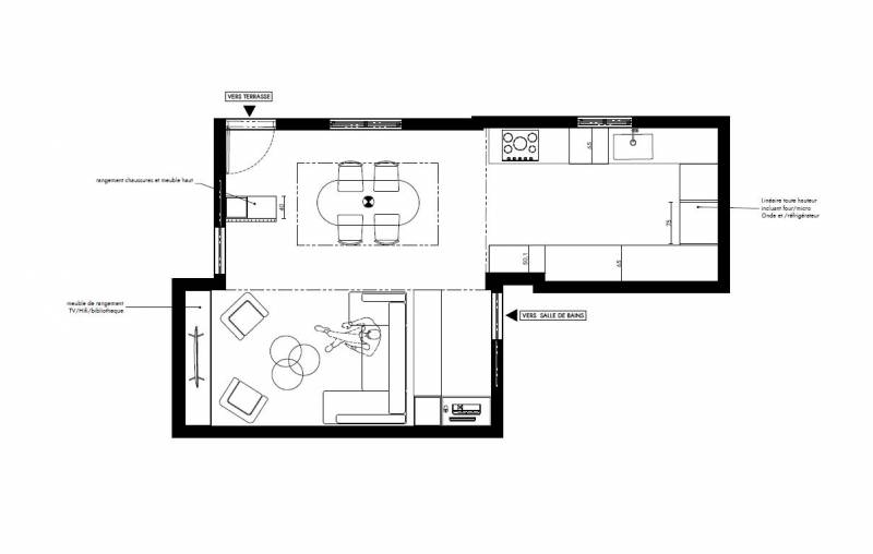
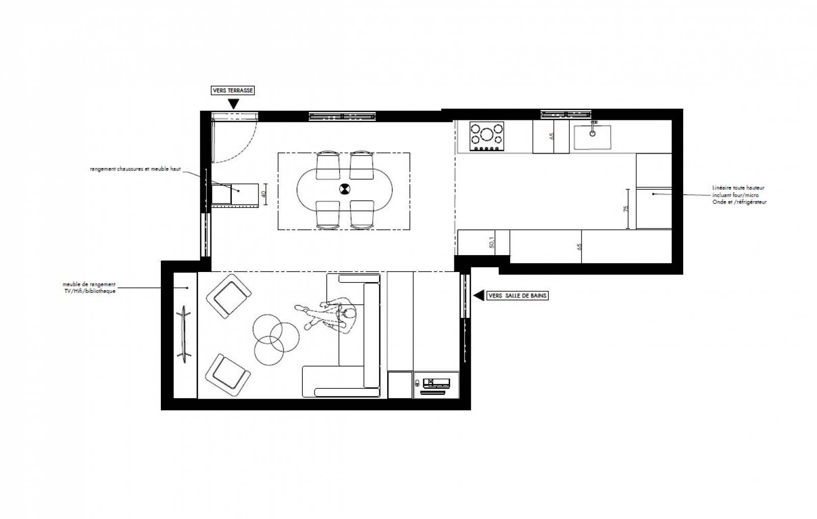
Agencement d'une pièce de vie à Eze Plan d'aménagement d'une pièce de vie à Eze Agencement et délimitation d'une entrée Création d'un espace bureau
Notre équipe d'architectes d'intérieur en ligne et Stéphane MILLET ont travaillé sur l'optimisation de l'aménagement d'un séjour avec vue sur la mer. 

Quels étaient les défis dans l'aménagement de ce salon ? 

Dans ce séjour de 35m2, plusieurs zones devaient pouvoir cohabiter tout en conservant dans son ensemble une belle impression d'espace. Pour respecter les besoins de la clientèle, nos architectes d'intérieur en ligne devaient délimiter plus clairement l'entrée, redéfinir le salon dédié à la télévision, concevoir un espace bureau qui servirait également de zone de séparation vers la salle de bain et enfin conserver un espace salle à manger.

Et dans la cuisine, quels étaient les parti-pris d'aménagement intérieur ? 

Ouverte sur le séjour, elle en est sa directe continuité. Avec un linéaire de meubles toute hauteur seulement sur le mur du fond, elle a été conçue sobre et élégante. Sur le mur de droite, Stéphane MILLET et ses architectes d'intérieur ont imaginé un revêtement en miroirs qui amène la vue sur la mer quelque soit l'endroit où l'on se trouve dans la cuisine. 


Si vous aussi vous avez un projet d'aménagement pour une zone de votre logement ou pour votre séjour, notre équipe d'architectes en ligne et Stéphane MILLET sont joignables ici.