Aménagement intérieur sur mesure
Accueil > Ideal-conceptions > Réaménagement d'un salon / salle à manger à Rueil-Malmaison (92)

Réaménagement d'un salon / salle à manger à Rueil-Malmaison (92)

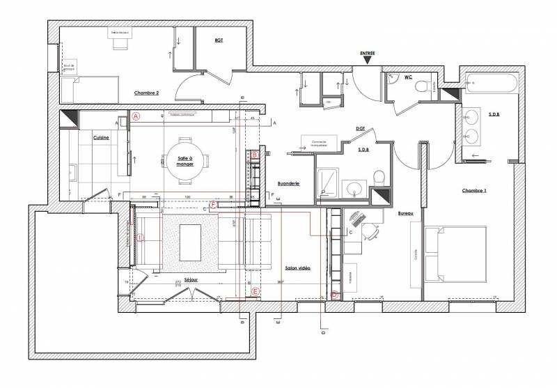
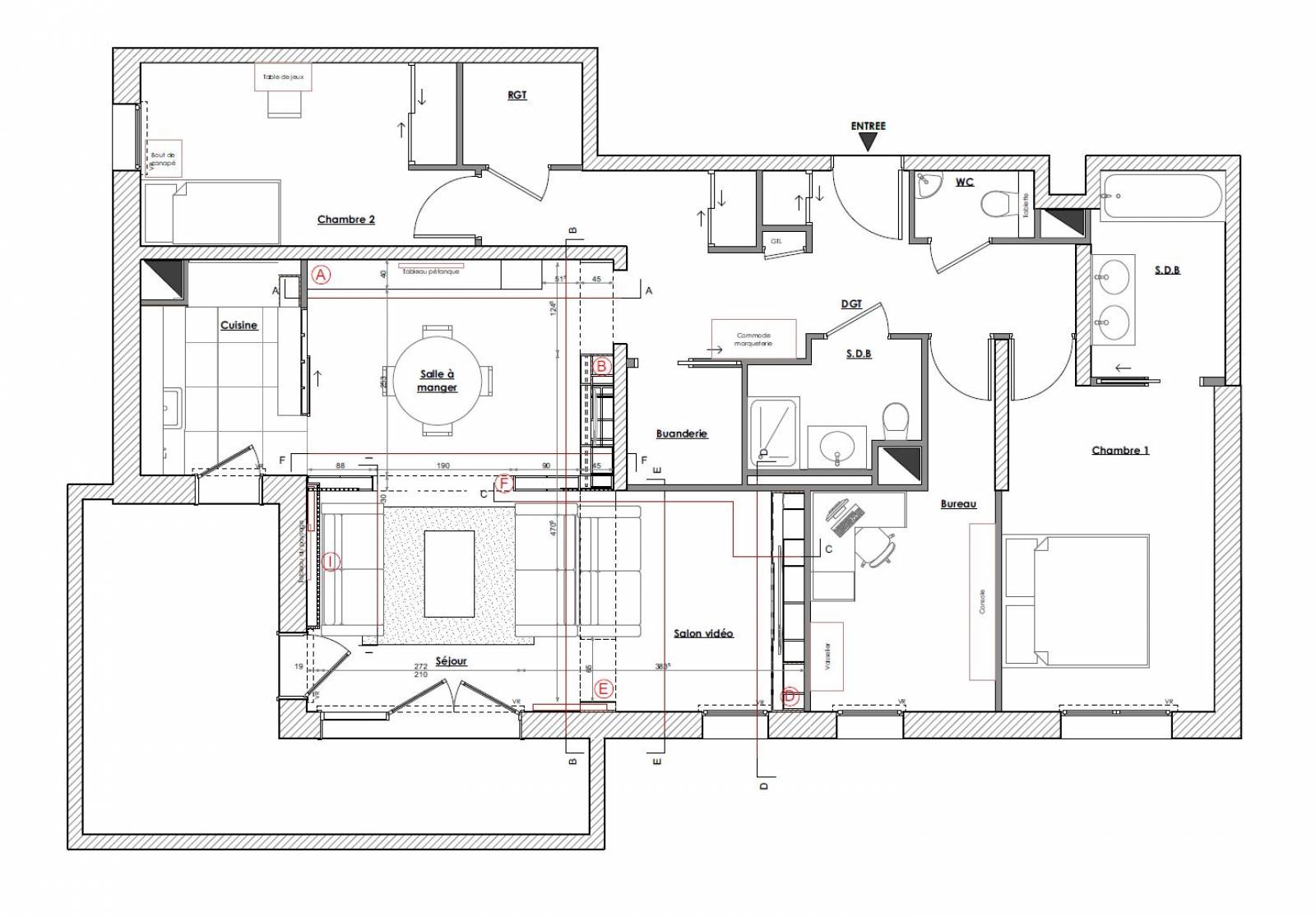
Aménagement intérieur sur mesure Plan d'aménagement salle à manger et salon Vue de la salle à manger depuis l'entrée Visuel 3D de la salle à manger et du salon

Trouver un architecte pour réaliser des plans pour un appartement à Rueil-Malmaison (92)

Sylvie et Bruno ont missionné nos équipes d’
architectes de IDÉAL, aux côtés de Stéphane Millet, pour la conception et l’aménagement de la partie pièce à vivre de cet appartement neuf à Rueil-Malmaison.

Dans cet appartement neuf, l’objectif des jeunes propriétaires était de créer dans une petite surface de 32m2 trois espaces différents : une salle à manger, un salon de réception et un salon home cinéma. Une contrainte supplémentaire s'est ajouté : la télévision devait être visible de la salle à manger et du salon de réception.

Avec la formule IDÉAL, nous avons proposé aux propriétaires la conception de plans d’architecte en ligne en 4 étapes :

- 1° étape – l’état des lieux avant projet : Sylvie et Bruno nous ont adressé les plans cotés des zones concernées ainsi que des photos.

- 2° étape - le cahier des charges : un architecte de IDÉAL s’est entretenu avec le couple pour recueillir leurs besoins, et aussi préciser leurs goûts et inspirations

- 3° étape - la conception du projet : en 3 semaines environ nos architectes en ligne de IDÉAL ont défini un projet complet comprenant les plans généraux, les visuels 3D, les plans d’agencement, un Mood Board des mobiliers, couleurs et matériaux

- 4° étape - la remise complète du dossier de conception après échanges avec le couple.

Cette solution IDÉAL a permis aux jeunes propriétaires de recevoir des plans d’architecte en ligne, adaptés à leurs besoins de départ et d’optimiser complètement cet espace de vie. Le dossier de conception a ensuite été transmis par le couple aux artisans chargés des travaux d’aménagement.

Si vous cherchez un architecte en ligne à Rueil-Malmaison, près de Paris, capable de vous proposer des plans d’aménagement détaillés et des inspirations pour la décoration de cet espace.

N’hésitez pas à contacter les équipes IDÉAL de Stéphane Millet pour leur soumettre votre projet via le formulaire.

Découvrez également
Visuel 3D de l'aménagement d'une entrée à Paris

Aménagement d'un espace cuisine, salle à manger, salon et d'une entrée à Antony (92)

Voici ici la réalisation de plans d'architecte d'intérieur pour aménager un appartement à Antony près de ParisComment ...
En savoir +
Aménagement intérieur d'une cuisine à Lyon

Rénovation d'un appartement à Lyon (69)

Pour ce projet, les propriétaires souhaitent vraiment garder chaque espace bien délimité : la cuisine et la salle à ma...
En savoir +
Avis client sur l'agencement d’un appartement à Lyon par un architecte d’intérieur IDEAL

Avis client sur l'agencement d’un appartement à Lyon par un architecte d’intérieur IDEAL

L’équipe IDEAL est récemment intervenue sur un projet d’aménagement d’intérieur dans un appartement lyonnais. Les jeun...
En savoir +